
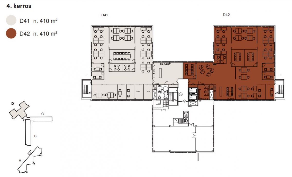
Vuokrataan toimisto 825 m² Tekniikantie 4, Otaniemi, Espoo
Vuokrataan tyylikkäästi saneerattu toimistotila Aallonharjasta Otaniemestä. Ilmoituksen kuvat ovat yleiskuvia kiinteistön tiloista.
Aallonharja koostuu neljän rakennuksen kokonaisuudesta ja pihapiiristä. Ne sijaitsevat Alvar Aallon suunnitteleman Otaniemen vesitornin juurella. Klassinen Aallon tuotanto ja sen aikainen tunnelma tuodaan vahvasti esille talojen sisustuksessa ja ratkaisuissa.
Kiinteistössä kahvila ja ravintola. Tarjolla on myös aulapalvelut, vuokrattava auditorio ja erilaisia kokoustiloja, saunatilat ja työmatkaliikkujille suihku- ja pukuhuonetilat. Paikalle pääsee pyörän lisäksi myös kätevästi omalla autolla tai julkisilla. Metroasema ja bussipysäkki ovat lyhyen kävelymatkan päässä.
Lisätietoja soita 020 730 4530 tai info@repoint.fi. Palvelumme on tilanhakijalle ilmainen.
Toimiston tiedot
| Osoite: | Tekniikantie 4, 02150 Espoo |
|---|---|
| Kauppatapa: | Vuokrataan |
| Tilatyyppi: | Toimisto |
| Pinta-ala: | 825 m² |
| Kerros: | 4 |
| Vuokra: | Ota yhteyttä kohteen välittäjään |
| Energialuokka: | Ei energiatodistusta |








