
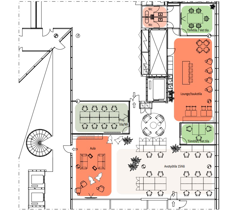
Vuokrataan toimisto 291 m² Elimäenkatu 5, Vallila, Helsinki
Vuokrataan tasokasta ja modernia tilaa aitiopaikalta Vallilasta.
Lasinen julkisivu luo valoisat ja viihtyisät puitteet kaikkiin kerroksiin.
Tämä täysin uudistettu Aina Valmis- konseptin mukainen tila on heti vapaana ja muuttovalmis.
Kattavat palvelut, kuten aulapalvelu, ravintola, vuokrattavat kokous-, sauna-, ja koulutustilat sekä kuntosali.
Keskeinen sijainti Pasilan ja Kalasataman välissä sekä helppo saavutettavuus niin autolla kuin julkisillakin. Bussit sekä raitiovaunut kulkevat alle 200 metrin päästä, pysäköintipaikkoja vuokrattavissa talon omasta autohallista ja pyöräilijöitä varten on pyöräparkki sekä omat pukuhuone- ja suihkutilat.
Lisätietoja soita 020 730 4530 tai info@repoint.fi. Palvelumme on tilanhakijalle ilmainen.
Toimiston tiedot
| Osoite: | Elimäenkatu 5, 00510 Helsinki |
|---|---|
| Kauppatapa: | Vuokrataan |
| Tilatyyppi: | Toimisto |
| Pinta-ala: | 291 m² |
| Kerros: | 5 |
| Vuokra: | Ota yhteyttä kohteen välittäjään |
| Energialuokka: | Ei energiatodistusta |








