
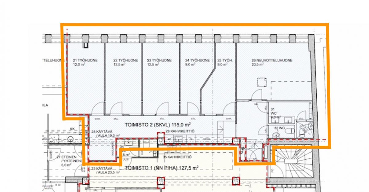
Vuokrataan toimisto 115 m² Kalevankatu 4 , Keskusta, Helsinki
Vuokrataan hyväkuntoinen toimistotila ydinkeskustasta. Viihtyisässä ja tehokkaassa toimistossa on 5 työhuonetta, neuvotteluhuone, 2 wc:tä, keittiö ja aulatilat.
Kalevankatu 4 on tyylikäs funkistalo keskellä Helsinkiä, jossa kaikki keskustan palvelut ovat kävelyetäisyydellä. Kiinteistön tilat soveltuvat myös arvonlisäverottomalle toimijalle.
Lisätietoja soita 020 730 4530 tai info@repoint.fi. Palvelumme on tilanhakijalle ilmainen.
Toimiston tiedot
| Osoite: | Kalevankatu 4 , 00100 Helsinki |
|---|---|
| Kauppatapa: | Vuokrataan |
| Tilatyyppi: | Toimisto |
| Pinta-ala: | 115 m² |
| Kerros: | 3 |
| Vuokra: | Ota yhteyttä kohteen välittäjään |
| Energialuokka: | Ei energiatodistusta |
















