
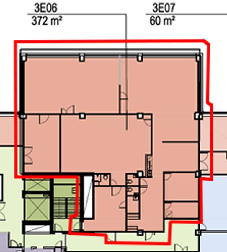
Vuokrataan tuotantotila 372 m² Atomitie 5, Pitäjänmäki, Helsinki
Vuokrataan 3. kerroksen toimitila, joka soveltuu hyvin tuotanto-/toimisto-/varastotilaksi, tai niiden yhdistelmäksi. Tilaa on mahdollista muokata vuokralaisen tilatarpeeseen sopivaksi.
Tavarahissiyhteys katetulle lastauspaikalle.
Kiinteistössä on aulapalvelu, vuokrattavia kokoustiloja ja Sodexon lounasravintola. Vuokralaisten käytettävissä on iso tavarahissi sekä lastauslaituri, jotka mahdollistavat tuotanto- ja varastotilojen liittämisen toimistojen yhteyteen.
Erittäin hyvät yhteydet sekä julkisilla että autolla. Valimon junaseisake on muutaman minuutin kävelymatkan päässä ja kohde on myös autolla helposti saavutettavissa Vihdintieltä ja Pitäjänmäentieltä.
Lisätietoja soita 020 730 4530 tai info@repoint.fi. Palvelumme on tilanhakijalle ilmainen.
Tuotantotilan tiedot
| Osoite: | Atomitie 5, 00370 Helsinki |
|---|---|
| Kauppatapa: | Vuokrataan |
| Tilatyyppi: | Tuotantotila |
| Pinta-ala: | 372 m² |
| Kerros: | 3 |
| Vuokra: | Ota yhteyttä kohteen välittäjään |
| Energialuokka: | Ei energiatodistusta |









