
Vuokrataan toimisto 117 m² Pursimiehenkatu 31 , Punavuori, Helsinki
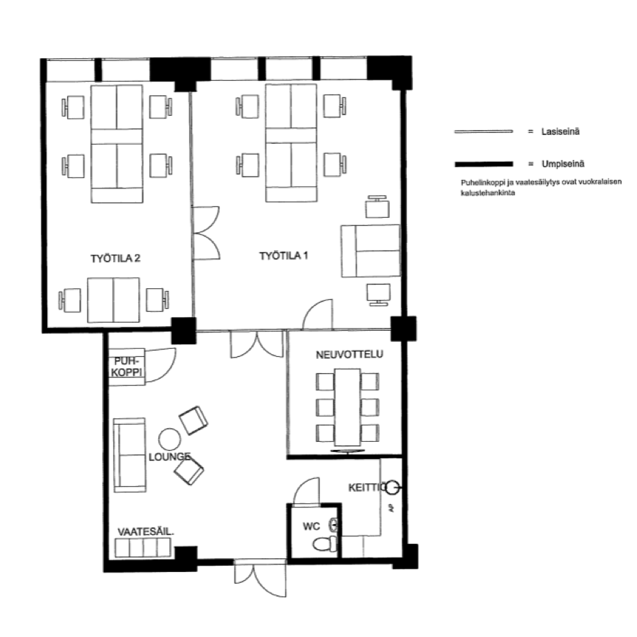
Vuokrataan muuttovalmis toimistotila. Tilassa kaksi työtilaa, neuvottelutila, wc, keittö ja lounge-alue. Tilassa on täysin uusittu tekniikka ja jäähdytys takaa miellyttävän työskentelyn kesälläkin.
Erinomainen sijainti Punavuoressa, suositussa dynaamisessa ja yhteisöllisessä Merikorttelissa! Alueella paljon laadukkaita ravintoloita ja kahviloita. Pysäköintitilaa tarjolla korttelin omassa parkkihallissa sekä läheisissä pysäköintilaitoksissa. Hyvät julkiset yhteydet raitiovaunulla ja bussilla.
Lisätietoja soita 020 730 4530 tai info@repoint.fi. Palvelumme on tilanhakijalle ilmainen.
Toimiston tiedot
Osoite: | Pursimiehenkatu 31 , 00150 Helsinki |
---|---|
Kauppatapa: | Vuokrataan |
Tilatyyppi: | Toimisto |
Pinta-ala: | 117 m² |
Kerros: | 3 |
Vuokra: | Ota yhteyttä kohteen välittäjään |
Energialuokka: | Ei energiatodistusta |