
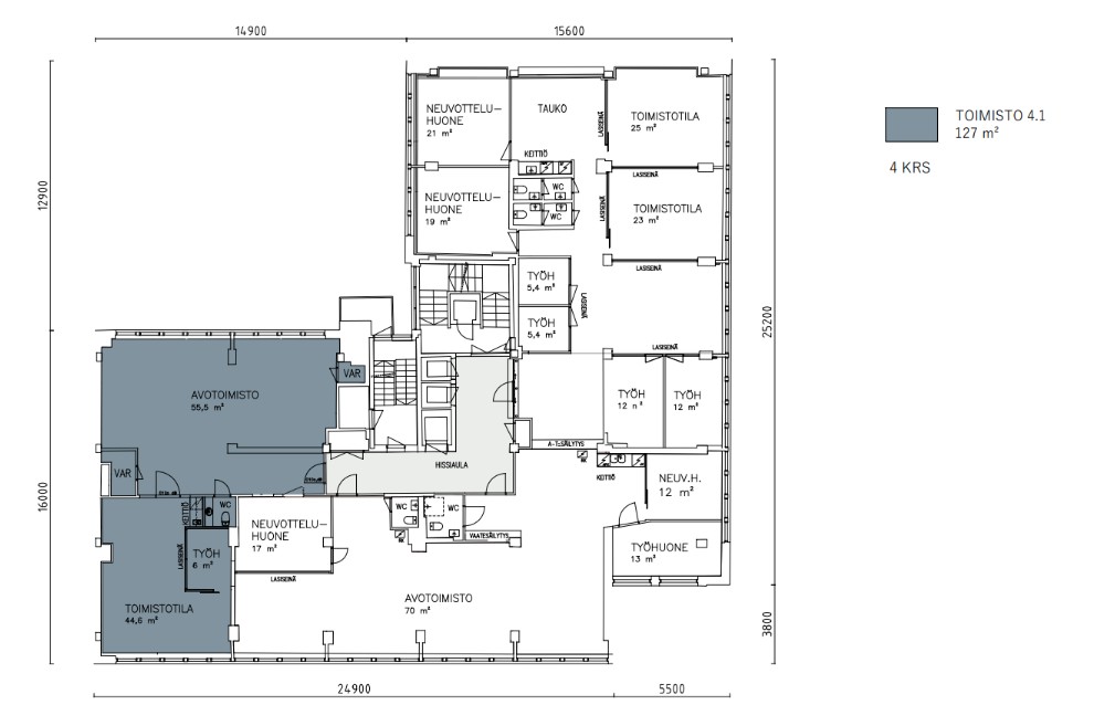
Vuokrataan toimisto 127 m² Fredrikinkatu 47, Keskusta, Helsinki
Vuokrataan toimisto Fredrikinkadulta Kampista. Tila koostuu kahdesta työtilasta, pienestä lasiseinäisestä huoneesta ja keittiöstä. Lisäksi 2 wc:tä ja pieni varastohuone.
Huippusijainti Kampissa, 6 minuutin kävely Kampin metroasemalle. Kampin kauppakeskuksen kattavat palvelut ja lounaspaikat lähellä. Pysäköintipaikkoja vuokrattavissa Kampin ja Forumin pysäköintilaitoksista.
Lisätietoja soita 020 730 4530 tai info@repoint.fi. Palvelumme on tilanhakijalle ilmainen.
Toimiston tiedot
| Osoite: | Fredrikinkatu 47, 00100 Helsinki |
|---|---|
| Kauppatapa: | Vuokrataan |
| Tilatyyppi: | Toimisto |
| Pinta-ala: | 127 m² |
| Kerros: | 4 |
| Vuokra: | Ota yhteyttä kohteen välittäjään |
| Energialuokka: | Ei energiatodistusta |









