
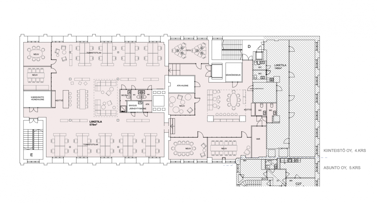
Vuokrataan toimisto 578 m² Köydenpunojankatu 2 , Keskusta, Helsinki
Vuokrataan upea ja hyväkuntoinen toimistotila. Persoonallinen toimisto vanhasta tehdasrakennuksesta Hietalahden torin vierestä.
Tilassa on avotyöskentelytilaa ja useampi neuvottelu- / projektitila, avonainen keittiö ja loungetilat, suihku, sekä 4 wc:tä.
Köydenpunojankatu 2 on vanha teollisuuskiinteistö Hietalahden torin ja meren vieressä. Talo on nykyään toimistokäytössä ja kiinteistön tiloissa tulee hienosti esiin talon historia. Alueella on monipuolinen ravintolatarjonta ja hyvät julkisen liikenteen yhteydet.
Lisätietoja soita 020 730 4530 tai info@repoint.fi. Palvelumme on tilanhakijalle ilmainen.
Toimiston tiedot
| Osoite: | Köydenpunojankatu 2 , 00180 Helsinki |
|---|---|
| Kauppatapa: | Vuokrataan |
| Tilatyyppi: | Toimisto |
| Pinta-ala: | 578 m² |
| Kerros: | 2 |
| Vuokra: | Ota yhteyttä kohteen välittäjään |
| Energialuokka: | Ei energiatodistusta |






