
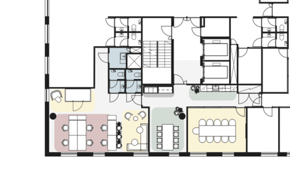
Vuokrataan toimisto 137 m² Urho Kekkosen katu 3-7 , Keskusta, Helsinki
Vuokrataan 5. kerroksen moderni toimistotila aivan Kampin sydämessä, palveluiden äärellä. Tilasta on näkymät Urho Kekkosen kadulle.
Kampintorni on osa Kampin kauppakeskuksen yhteydessä sijaitsevaa toimistorakennuskokonaisuutta Trigoraa. Trigora on rakennettu 2005, toimistotilaa kolmessa tornissa yhteensä 12 000 m2 ja sen on suunnitellut Pekka Helin. Torneista on suora yhteys kauppakeskukseen, joten kattavat palvelut kuten ravintolamaailma, kaupat, julkiset kulkuvälineet ja parkkihallit ovat välittömässä läheisyydessä.
Lisätietoja soita 020 730 4530 tai info@repoint.fi. Palvelumme on tilanhakijalle ilmainen.
Toimiston tiedot
| Osoite: | Urho Kekkosen katu 3-7 , 00100 Helsinki |
|---|---|
| Kauppatapa: | Vuokrataan |
| Tilatyyppi: | Toimisto |
| Pinta-ala: | 137 m² |
| Kerros: | 5 |
| Vuokra: | Ota yhteyttä kohteen välittäjään |
| Energialuokka: | Ei energiatodistusta |










