
Vuokrataan toimisto 237 m² Vuorikatu 16 A 1, Keskusta, Helsinki
Vuokrataan erittäin hyväkuntoinen hiljattain täysin remontoitu valoisa toimisto. Huippusijainti lähellä rautatieasemaa. Tila on saneerattu erittäin laadukkaasti pari vuotta sitten ja on erinomaisessa kunnossa.
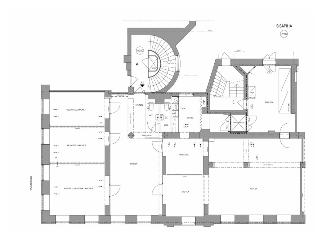
Huoneistosta löytyy kolmen tilavan työ-/neuvotteluhuoneen lisäksi hyvin akustoitua avotilaa, varastohuone, taukotila, keittiö, ja kaksi wc-tilaa. Huoneisto sijaitsee kiinteistön toisessa kerroksessa, ja pääsisäänkäynti on hissillisen A-portaan kautta. Tilaan on käynti myös sisäpihan kautta. Ilmanvaihto on koneellinen ja varustettu “kevytviilennyksellä”.
.
Lisätietoja soita 020 730 4530 tai info@repoint.fi. Palvelumme on tilanhakijalle ilmainen.
Toimiston tiedot
| Osoite: | Vuorikatu 16 A 1, 00100 Helsinki |
|---|---|
| Kauppatapa: | Vuokrataan |
| Tilatyyppi: | Toimisto |
| Pinta-ala: | 237 m² |
| Kerros: | 2 |
| Vuokra: | Ota yhteyttä kohteen välittäjään |
| Energialuokka: | Ei energiatodistusta |








