
Vuokrataan tuotantotila 3497 m² Koskelontie 13, Koskelo, Espoo
Vuokrataan tuotantoon ja varastointiin soveltuvaa tilaa Koskelosta.
Kolme lastaustaskua ja sisäänajomahdollisuus nosto-oven kautta.
Lattian kantavuus n. 1000 kg/m2 ja tilan vapaa korkeus n. 4,6 metriä.
Tiloissa hyvä sähkökapasiteetti ja useita voimavirtapistokkeita.
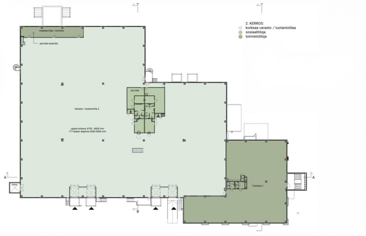
Lisäksi vuokrattavissa toimistotilaa ja lisää tuotanto-/varastotilaa alakerrasta. Hyvät sosiaalitilat ja reilusti pysäköintipaikkoja kiinteistön pihalla.
Osa ilmoituksen kuvista on arkkitehdin havainnekuvia. Tilat ovat heti vapaana.
Keskeinen ja näkyvä sijainti Kehä III:n välittömässä läheisyydessä sekä nopeat yhteydet kaikille pääväylille.
Lisätietoja soita 020 730 4530 tai info@repoint.fi. Palvelumme on tilanhakijalle ilmainen.
Tuotantotilan tiedot
| Osoite: | Koskelontie 13, 02920 Espoo |
|---|---|
| Kauppatapa: | Vuokrataan |
| Tilatyyppi: | Tuotantotila |
| Pinta-ala: | 3497 m² |
| Kerros: | 2 |
| Vuokra: | Ota yhteyttä kohteen välittäjään |
| Energialuokka: | Ei energiatodistusta |











