
Vuokrataan tuotantotila 3639 m² Koskelontie 13, Koskelo, Espoo
Vuokrataan tuotantoon ja varastointiin soveltuvaa tilaa Koskelosta.
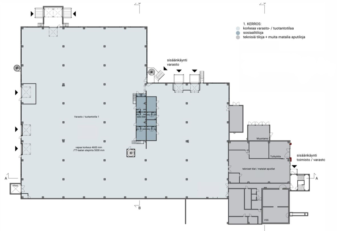
Kolme lastaustaskua ja sisäänajomahdollisuus nosto-ovien kautta.
Lattian kantavuus n. 2000 kg/m2 ja tilan vapaa korkeus n. 4,6 metriä.
Tiloissa hyvä sähkökapasiteetti ja useita voimavirtapistokkeita.
Lisäksi vuokrattavissa toimistotilaa ja lisää tuotanto-/varastotilaa yläkerrasta. Hyvät sosiaalitilat ja reilusti pysäköintipaikkoja kiinteistön pihalla.
Osa ilmoituksen kuvista on arkkitehdin havainnekuvia. Tilat ovat heti vapaana.
Keskeinen ja näkyvä sijainti Kehä III:n välittömässä läheisyydessä sekä nopeat yhteydet kaikille pääväylille.
Lisätietoja soita 020 730 4530 tai info@repoint.fi. Palvelumme on tilanhakijalle ilmainen.
Tuotantotilan tiedot
| Osoite: | Koskelontie 13, 02920 Espoo |
|---|---|
| Kauppatapa: | Vuokrataan |
| Tilatyyppi: | Tuotantotila |
| Pinta-ala: | 3639 m² |
| Kerros: | 1 |
| Vuokra: | Ota yhteyttä kohteen välittäjään |
| Energialuokka: | Ei energiatodistusta |











