
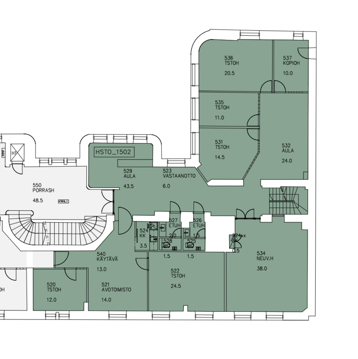
Vuokrataan toimisto 235 m² Eteläranta 14 , Keskusta, Helsinki
Vuokrataan tyylikkäästi remontoitu kulmatoimisto merinäköalalla Etelärannasta.
Helsingin Eteläranta 14 / Unioninkatu 15 kiinteistö tarjoaa toimitilaa huippupaikalla Kauppatorin laidalla. Kiinteistön tilat ovat helposti muunneltavissa vuokralaisen tarpeita vastaaviksi. Ylimmistä kerroksista on upeat näkymät merelle ja Katajanokalle. Vuokralaisten käytössä on Eteläranta 12:n pyöräparkki.
Kiinteistö on BREEAM In-Use Good -sertifioitu ja kiinteistössä käytetään vihreää kiinteistösähköä.
Lisätietoja soita 020 730 4530 tai info@repoint.fi. Palvelumme on tilanhakijalle ilmainen.
Toimiston tiedot
| Osoite: | Eteläranta 14 , 00130 Helsinki |
|---|---|
| Kauppatapa: | Vuokrataan |
| Tilatyyppi: | Toimisto |
| Pinta-ala: | 235 m² |
| Kerros: | 5 |
| Vuokra: | Ota yhteyttä kohteen välittäjään |
| Energialuokka: | Ei energiatodistusta |

