
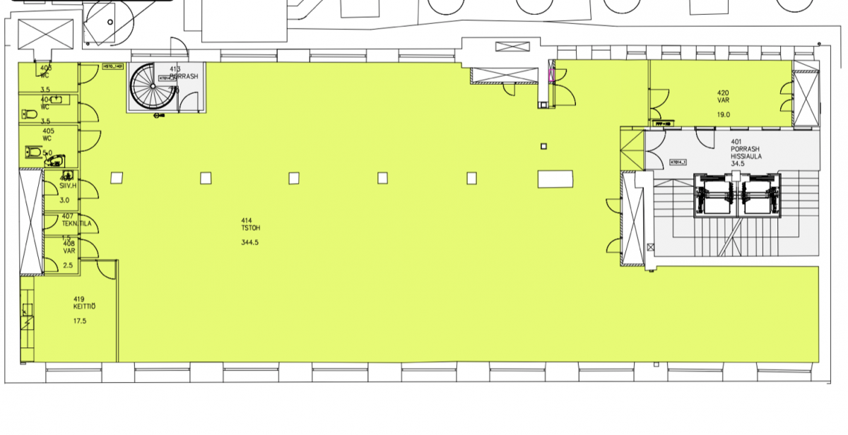
Vuokrataan toimisto 403 m² Keskuskatu 1 B , keskusta, Helsinki
Vuokrataan avara ja valoisa toimistotila Keskuskadulta.
Helsingin Keskuskatu 1B on Eliel Saarisen vuonna 1921 suunnittelema arvokiinteistö, joka sijaitsee Helsingin ytimessä, keskustan tyylikkäimmän kävelykadun varrella. Kohteen tilat ovat pääosin toimistotiloja sekä katutason liiketilaa. Vuokrattavat toimistotilat on modernisoitu muutama vuosi sitten, kiinteistön arvokkuutta kunnioittaen.
Kiinteistö on BREEAM In-Use Good -sertifioitu ja kiinteistössä käytetään vihreää sähköä.
Lisätietoja soita 020 730 4530 tai info@repoint.fi. Palvelumme on tilanhakijalle ilmainen.
Toimiston tiedot
| Osoite: | Keskuskatu 1 B , 00100 Helsinki |
|---|---|
| Kauppatapa: | Vuokrataan |
| Tilatyyppi: | Toimisto |
| Pinta-ala: | 403 m² |
| Kerros: | 3 |
| Vuokra: | Ota yhteyttä kohteen välittäjään |
| Energialuokka: | C2018 |

