
Vuokrataan toimisto 149 m² Annankatu 34 , Keskusta, Helsinki
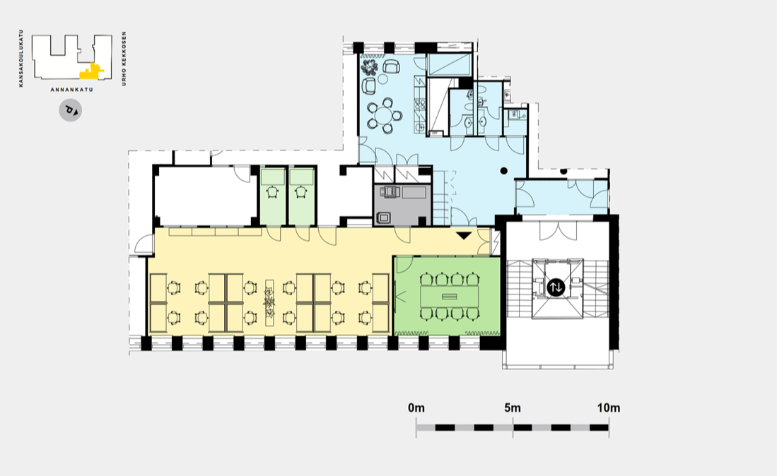
Vuokrataan 7 kerroksen toimistotila. 120 m2 kokoinen toimistotila, jolla on osuus toisen vuokralaisen kanssa jaettavista yhteistiloista. Omassa tilassa on avotoimistoa, neuvottelutila, kaksi vetäytymistilaa sekä varastotila. Jaettavat yhteistilat ovat pinta-alaltaan noin 59 m2 ja kattavat yhteisen taukokeittiön, wc:t sekä aulan. Vuokranmaksu pinta-alan 149,5 m2 perusteella.
Kampin Huippu on valinta, kun haluat modernit toimitilat Helsingin ydinkeskustan keskipisteestä. Kampin Huipusta on lyhyt matka kaikkialle. Kiinteistössä on kattavat aula-, ravintola- ja kokouspalvelut. Sisätilat on uusittu nykyajan vaatimuksia vastaaviksi. Vastapäätä Kampin keskusta sijaitsevassa Kampin Huipussa ydinkeskustan palvelut ja liikenneyhteydet ovat kävelyetäisyydellä. Taloon on hissiyhteys Forumin parkkihallista. Kiinteistössä on myös polkupyörien pysäköintipaikat ja sosiaalitilat suihkuineen.
Lisätietoja soita 020 730 4530 tai info@repoint.fi. Palvelumme on tilanhakijalle ilmainen.
Toimiston tiedot
| Osoite: | Annankatu 34 , 00100 Helsinki |
|---|---|
| Kauppatapa: | Vuokrataan |
| Tilatyyppi: | Toimisto |
| Pinta-ala: | 149 m² |
| Kerros: | 7 |
| Vuokra: | Ota yhteyttä kohteen välittäjään |
| Energialuokka: | Ei energiatodistusta |


