
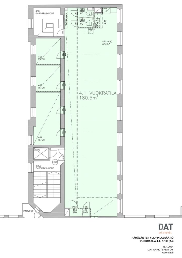
Vuokrataan toimisto 181 m² Urho Kekkosen katu 4-6, Keskusta, Helsinki
Vuokrataan hyväkuntoinen toimistotila Kampista huippusijainnilta. Tiloja on mahdollista muokata seuraavan käyttäjän toiveiden pohjalta. Koneellinen ilmanvaihto ja huonekohtainen jäähdytys. Kuituyhteys tulee suoraan tilaan. Ilmoituksen kuvat ovat yleiskuvia kiinteistön tiloista. Tila on heti vapaa.
Loistava sijainti Kampin kauppakeskusta vastapäätä ja erittäin hyvät julkiset yhteydet.
Lisätietoja soita 020 730 4530 tai info@repoint.fi. Palvelumme on tilanhakijalle ilmainen.
Toimiston tiedot
| Osoite: | Urho Kekkosen katu 4-6, 00100 Helsinki |
|---|---|
| Kauppatapa: | Vuokrataan |
| Tilatyyppi: | Toimisto |
| Pinta-ala: | 181 m² |
| Kerros: | 6 |
| Vuokra: | Ota yhteyttä kohteen välittäjään |
| Energialuokka: | Ei energiatodistusta |









