
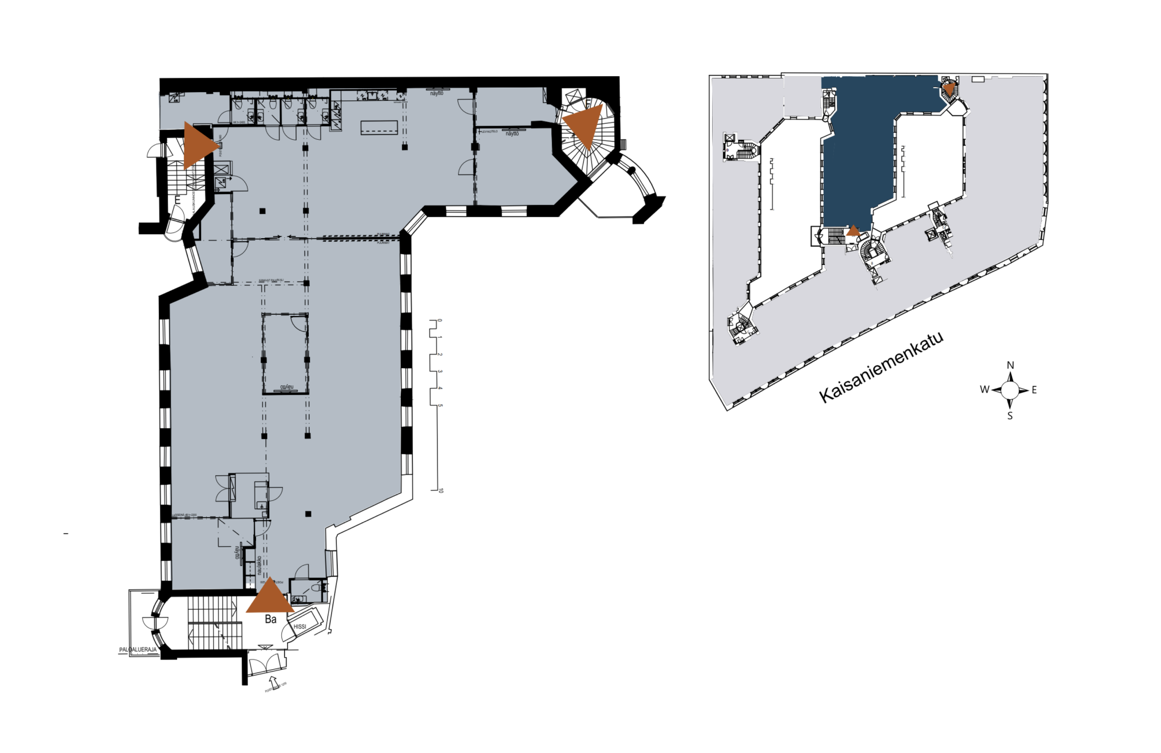
Vuokrataan toimisto 408 m² Kaisaniemenkatu 1 , Keskusta, Helsinki
Vuokrataan äskettäin remontoitu muuttovalmis toimistotila. Toimistossa on avotilaa ja muutamia huoneita.
Erinomaiset julkisen liikenteen kulkuyhteydet, kellarissa pyöräparkki ja suihku- / pukuhuonetilat. Parkkitilaa vuokrattavissa alueen pysäköintilaitoksista.
Upea kohta 100-vuotinen kiinteistö näkyvällä paikalla. Kohde on juuri läpikäynyt mittavat muutostyöt: viemärilinjat on sukitettu,
julkisivut saneerattu, sisäpiha pinnoitettu ja katot uusittu. Rappukäytävien valaistus sekä lattiat ja valaistukset on päivitetty perinteitä kunnioittaen.
Lisätietoja soita 020 730 4530 tai info@repoint.fi. Palvelumme on tilanhakijalle ilmainen.
Toimiston tiedot
| Osoite: | Kaisaniemenkatu 1 , 00100 Helsinki |
|---|---|
| Kauppatapa: | Vuokrataan |
| Tilatyyppi: | Toimisto |
| Pinta-ala: | 408 m² |
| Kerros: | 3 |
| Vuokra: | Ota yhteyttä kohteen välittäjään |
| Energialuokka: | G2007 |










