
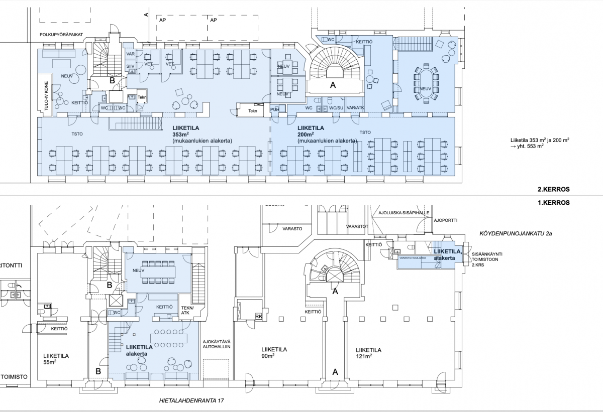
Vuokrataan toimisto 553 m² Hietalahdenranta 17, Keskusta, Helsinki
Vuokrataan upea ja hyväkuntoinen toimistotila Hietalahdenrannasta. 2. kerroksen toimistossa on avotilaa, muutama neuvotteluhuone, kaksi pientä huonetta, sekä kaksi keittiötä, wc-tilat ja suihku. Katutasossa Hietalahdenrannan puolella on upea taukotila hienolla keittiöllä ja neuvottelutila, johon voi ottaa vieraat suoraan sisään. Kerrokset yhdistyvät upeilla puuportailla. Valoisasta toimistosta on mukavat näkymät merelle. Tilassa on koneellinen ilmanvaihtoa jäähdytyksellä.
Köydenpunojankatu 2 on vanha teollisuuskiinteistö Hietalahden torin ja meren vieressä. Talo on nykyään toimistokäytössä ja kiinteistön tiloissa tulee hienosti esiin talon historia. Alueella on monipuolinen ravintolatarjonta ja hyvät julkisen liikenteen yhteydet.
Lisätietoja soita 020 730 4530 tai info@repoint.fi. Palvelumme on tilanhakijalle ilmainen.
Toimiston tiedot
| Osoite: | Hietalahdenranta 17, 00180 Helsinki |
|---|---|
| Kauppatapa: | Vuokrataan |
| Tilatyyppi: | Toimisto |
| Pinta-ala: | 553 m² |
| Kerros: | 2 |
| Vuokra: | Ota yhteyttä kohteen välittäjään |
| Energialuokka: | Ei energiatodistusta |


















