
Vuokrataan toimisto 267 m² Annankatu 34 , Keskusta, Helsinki
Vuokrataan 6. kerroksen toimistotila Kampista.
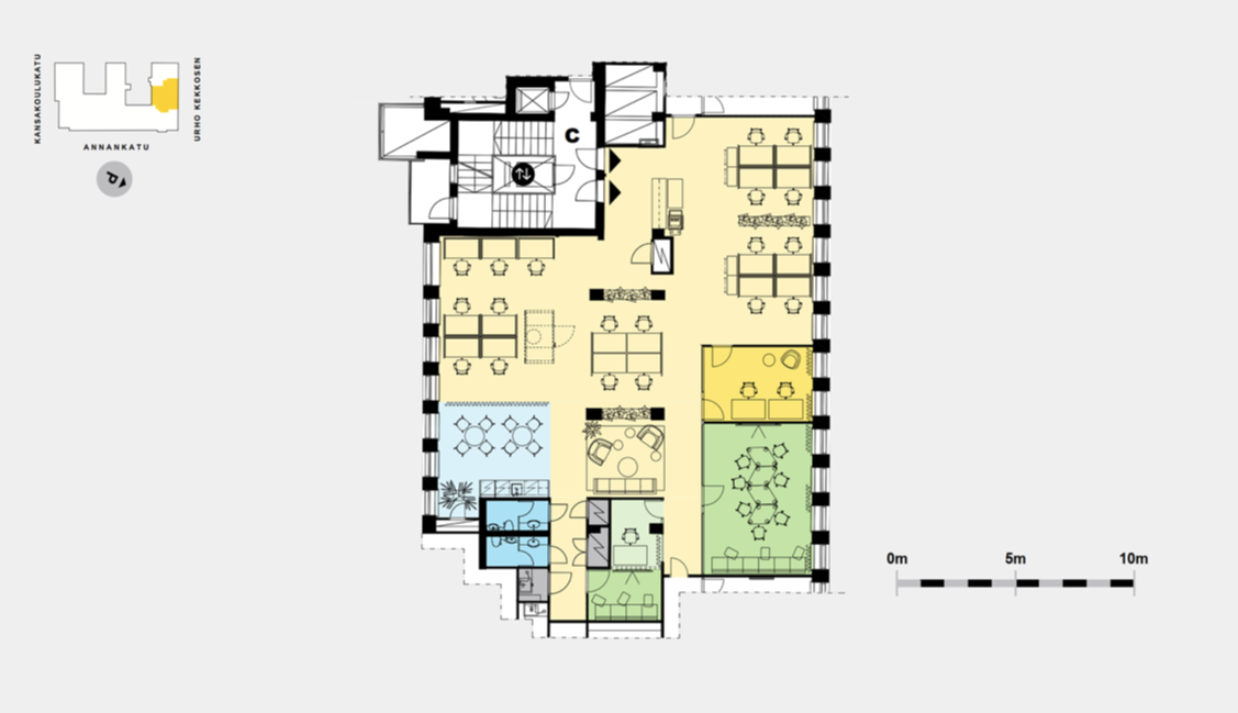
Toimistossa on erikokoisia työskentely- ja neuvottelutiloja, sekä avotoimistoa, sekä keittiö- ja taukotilat. Tilaa on mahdollista muokata seuraavan vuokrlaisen toiveiden mukaan ja tilaan tehdään uusi keittiö. Sisäänkäynti Urho Kekkosen kadun puolelta.
Kampin Huippu on valinta, kun haluat modernit toimitilat Helsingin ydinkeskustan keskipisteestä. Kampin Huipusta on lyhyt matka kaikkialle. Kiinteistössä on kattavat aula-, ravintola- ja kokouspalvelut. Sisätilat on uusittu nykyajan vaatimuksia vastaaviksi. Vastapäätä Kampin keskusta sijaitsevassa Kampin Huipussa ydinkeskustan palvelut ja liikenneyhteydet ovat kävelyetäisyydellä. Taloon on hissiyhteys Forumin parkkihallista. Kiinteistössä on myös polkupyörien pysäköintipaikat ja sosiaalitilat suihkuineen.
Lisätietoja soita 020 730 4530 tai info@repoint.fi. Palvelumme on tilanhakijalle ilmainen.
Toimiston tiedot
| Osoite: | Annankatu 34 , 00100 Helsinki |
|---|---|
| Kauppatapa: | Vuokrataan |
| Tilatyyppi: | Toimisto |
| Pinta-ala: | 267 m² |
| Kerros: | 6 |
| Vuokra: | Ota yhteyttä kohteen välittäjään |
| Energialuokka: | Ei energiatodistusta |










