
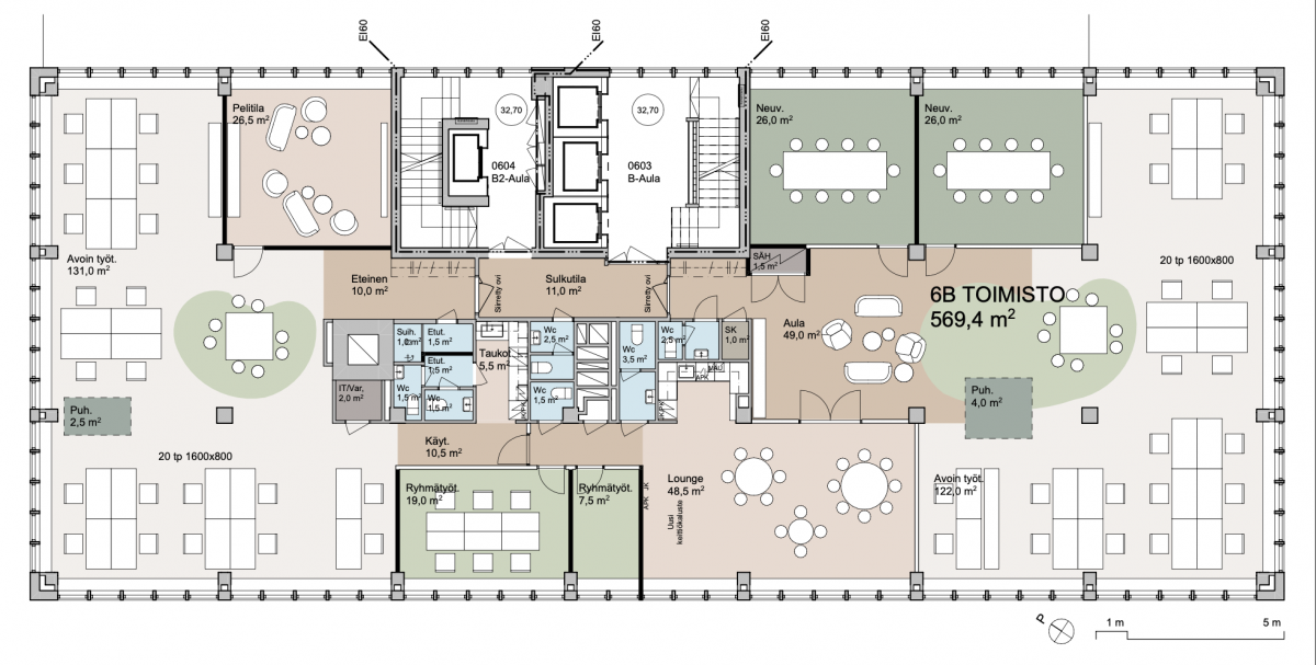
Vuokrataan toimisto 570 m² Salomonkatu 17 B , Keskusta, Helsinki
Vuokrataan siisti ja valoisa toimistotila Autotalosta keskeltä Kamppia. Tilassa on valoisaa avotoimistoa ja eri kokoisia neuvotteluhuoneita. Tilaa on mahdollista muokata seuraavalle käyttäjälle sopivaksi.
Talon ylimmästä kerroksessa upea Sky Lounge, jossa erikseen vuokrattavissa olevat kokous- ja saunatilat.
Kiinteistössä tehty mittava perusparannushanke muutama vuosi sitten. Talon aulatilat uusittiin samalla ja alakerrassa toimii suosittuja lounasravintoloita. Autoilijoille löytyy parkkipaikkoja talon alta autohallista. Pyöräilijöille pyöräparkki, suihkut ja pukuhuonetilat.
Erinomaiset julkiset kulkuyhteydet, metro- ja linja-autoasema aivan vieressä ja juna-asemalle muutaman minuutin kävelymatka.
Lisätietoja soita 020 730 4530 tai info@repoint.fi. Palvelumme on tilanhakijalle ilmainen.
Toimiston tiedot
| Osoite: | Salomonkatu 17 B , 00100 Helsinki |
|---|---|
| Kauppatapa: | Vuokrataan |
| Tilatyyppi: | Toimisto |
| Pinta-ala: | 570 m² |
| Kerros: | 6 |
| Vuokra: | Ota yhteyttä kohteen välittäjään |
| Energialuokka: | E2013 |

















