
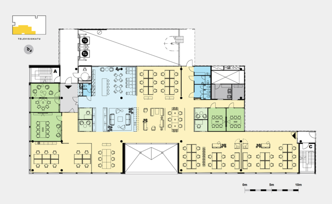
Vuokrataan toimisto 745 m² Televisiokatu 2 , Pasila, Helsinki
Vuokrataan siisti toimistotila uudistuneesta Pasilan Linkistä. Tilassa avotoimistoa ja erikoisia työ- ja kokoushuoneita. Avara taukokeittiö ja lounge-alue.
Pasilan Linkkissä on aulapalvelu, hyvä lounasravintola, erikseen vuokrattavia neuvottelutiloja ja noin 80 hengen koulutustila, sekä kuntosali. Hyvät julkiset yhteydet junalla, raitiovaunulla ja bussilla. Autoilijoille löytyy pysäköintipaikkoja talon alta parkkihallista ja lisäpaikkoja saatavilla Helsinki Hallin pysäköintihallista. Pyöräilijöille suihku- ja pukuhuonetilat talon kellarikerroksessa.
Lisätietoja soita 020 730 4530 tai info@repoint.fi. Palvelumme on tilanhakijalle ilmainen.
Toimiston tiedot
| Osoite: | Televisiokatu 2 , 00240 Helsinki |
|---|---|
| Kauppatapa: | Vuokrataan |
| Tilatyyppi: | Toimisto |
| Pinta-ala: | 745 m² |
| Kerros: | 4 |
| Vuokra: | Ota yhteyttä kohteen välittäjään |
| Energialuokka: | D2015 |










