
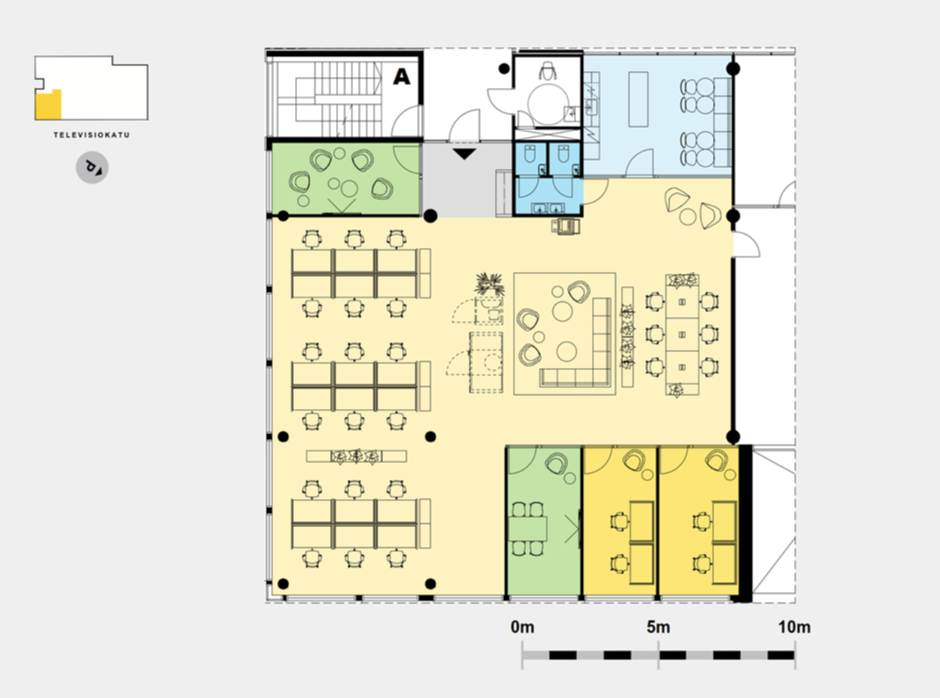
Vuokrataan toimisto 319 m² Televisiokatu 2 , Pasila, Helsinki
Vuokrataan juuri remontoitua toimistotilaa Pasilan Visiosta. Avarassa ja valoisassa toimistossa on avotilaa, 4 huonetta, sekä viihtyisät keittiö- ja taukotilat.
Pasilan Visiossa on aulapalvelu, hyvä lounasravintola, erikseen vuokrattavia neuvottelutiloja ja noin 80 hengen koulutustila, sekä kuntosali. Hyvät julkiset yhteydet junalla, raitiovaunulla ja bussilla. Autoilijoille löytyy pysäköintipaikkoja talon alta parkkihallista ja lisäpaikkoja saatavilla Helsinki Hallin pysäköintihallista. Pyöräilijöille suihku- ja pukuhuonetilat talon kellarikerroksessa.
Lisätietoja soita 020 730 4530 tai info@repoint.fi. Palvelumme on tilanhakijalle ilmainen.
Toimiston tiedot
| Osoite: | Televisiokatu 2 , 00240 Helsinki |
|---|---|
| Kauppatapa: | Vuokrataan |
| Tilatyyppi: | Toimisto |
| Pinta-ala: | 319 m² |
| Kerros: | 3 |
| Vuokra: | Ota yhteyttä kohteen välittäjään |
| Energialuokka: | D2015 |














