
Vuokrataan toimisto 195 m² Erottajankatu 19 , Keskusta, Helsinki
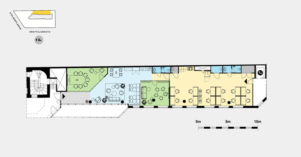
Vuokrataan viihtyisä toimistotila historiallisesta talosta Erottajan ja Eteläesplanadin kulmasta. Tilassa on avotilaa, kaksi neuvotteluhuonetta, taukokeittiö ja kaksi wc:tä. Tilaan pystyy tekemään työhuoneita tarvittaessa lisää. Sisäänkäynti tilaan Eteläesplanadi 24:n puoleisesta rapusta.
Helsingin Erottajankulma on valintasi, kun etsit tyylikästä ja edustavaa toimitilaa näyttävältä paikalta, ydinkeskustan arvostetuimmista kortteleista. Helsingin keskustan kolmen pääakselin risteyksessä sijaitseva arvokiinteistö on maamerkki, jonka useimmat tuntevat. Vuonna 1893 valmistunut Erottajankulma on täynnä koristeellisia ja pysäyttäviä yksityiskohtia.
Lisätietoja soita 020 730 4530 tai info@repoint.fi. Palvelumme on tilanhakijalle ilmainen.
Toimiston tiedot
| Osoite: | Erottajankatu 19 , 00130 Helsinki |
|---|---|
| Kauppatapa: | Vuokrataan |
| Tilatyyppi: | Toimisto |
| Pinta-ala: | 195 m² |
| Kerros: | 2 |
| Vuokra: | Ota yhteyttä kohteen välittäjään |
| Energialuokka: | G2007 |







