
Vuokrataan toimisto 312 m² Kasarmikatu 44 , keskusta, Helsinki
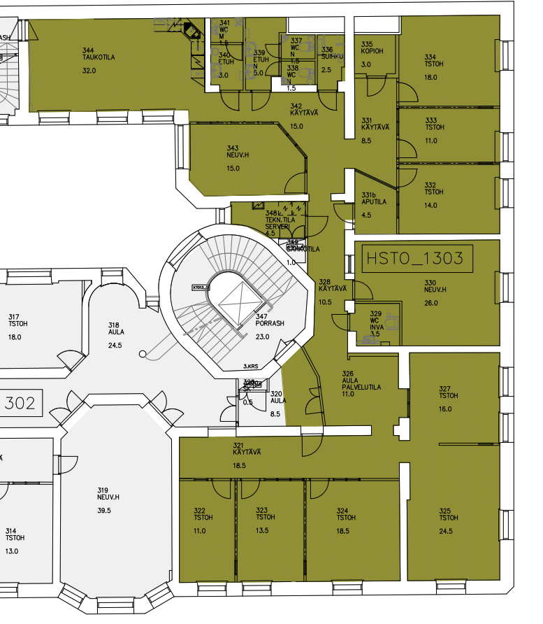
Vuokrataan hyväkuntoinen remontoitu toimistotila Rikhardinkadun ja Kasarmikadun kulmasta. Kolmannen kerroksen toimistossa on työhuoneita ja avotilaa, keittiö, sekä wc- ja suihkutilat. Tila vapautuu sopimuksen mukaan.
Kohde sijaitsee Helsingin ydinkeskustassa, noin viiden minuutin kävelymatkan päässä Kauppatorilta.
Lisätietoja soita 020 730 4530 tai info@repoint.fi. Palvelumme on tilanhakijalle ilmainen.
Toimiston tiedot
| Osoite: | Kasarmikatu 44 , 00130 Helsinki |
|---|---|
| Kauppatapa: | Vuokrataan |
| Tilatyyppi: | Toimisto |
| Pinta-ala: | 312 m² |
| Kerros: | 3 |
| Vuokra: | Ota yhteyttä kohteen välittäjään |
| Energialuokka: | Ei energiatodistusta |

