
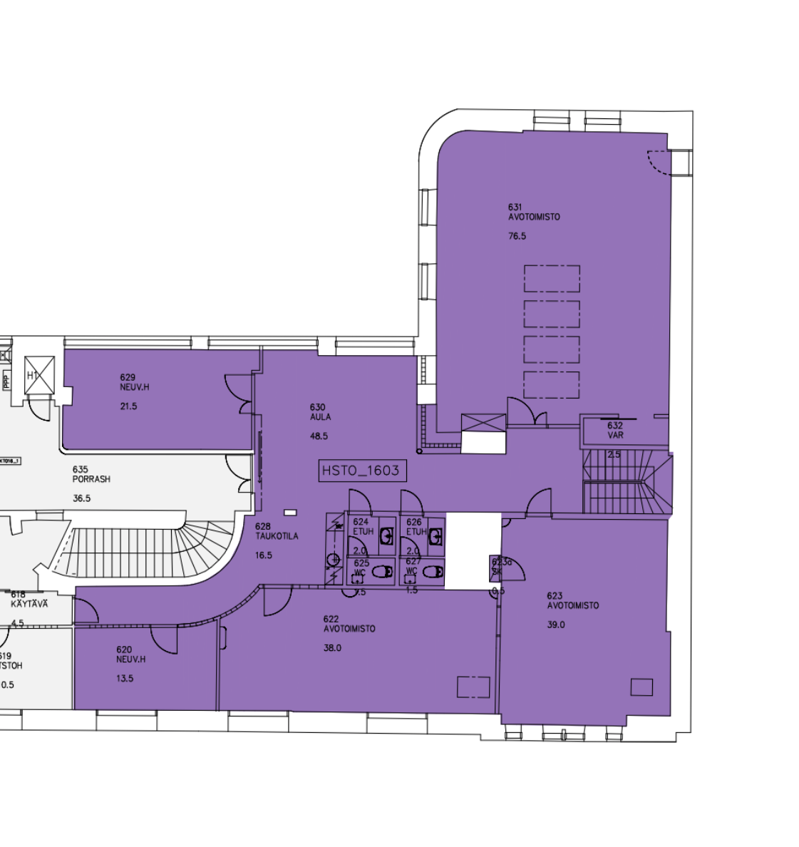
Vuokrataan toimisto 273 m² Eteläranta 14 , keskusta, Helsinki
Vuokrataan siisti, hyvällä sijainnilla sekä merinäköalalla varusteltu toimistotila. Laadukkailla materiaaleilla remontoidussa toimistossa on avotoimistoa ja neuvotteluhuoneita, 2 wc:tä, avokeittiö, sekä yleistä tilaa.
Upea kiinteistö ja hieno sijainti meren ja Kauppatorin ääressä.
Lisätietoja soita 020 730 4530 tai info@repoint.fi. Palvelumme on tilanhakijalle ilmainen.
Toimiston tiedot
| Osoite: | Eteläranta 14 , 00130 Helsinki |
|---|---|
| Kauppatapa: | Vuokrataan |
| Tilatyyppi: | Toimisto |
| Pinta-ala: | 273 m² |
| Kerros: | 6 |
| Vuokra: | Ota yhteyttä kohteen välittäjään |
| Energialuokka: | Ei energiatodistusta |


