
Vuokrataan toimisto 500 m² Fabianinkatu 21, Keskusta, Helsinki
Vuokrataan valoisa ja kompakti toimistotila Kaartinkaupungista.
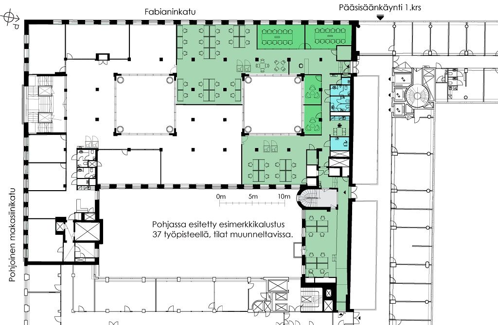
Avotoimisto jossa tilankäyttö on tehokasta. Valoaukko takaa huoneiston ainutlaatuisen valaistuksen.
Esplanadin puiston ja Kauppatorin vieressä sijaitsevia helposti muunneltavia toimistotiloja. Arkkitehti Pekka Saareman suunnittelema Tukkukauppojen Oy:lle rakennettu toimistokiinteistö on valmistunut 1962 ja peruskorjattu vuonna 1990. Toimistoilat ovat muunneltavissa joko avo- tai huonekonttorikäyttöön. Fabian 21 sijaitsee Kauppatorin, Esplanadin sekä Kasarmitorin välittömässä läheisyydessä. Kulkuyhteydet ovat loistavat, sillä rautatie- ja Helsingin yliopiston metroasemalle on 600 metriä ja raitiovaunut kulkevat aivan läheltä.
Arvokkaasta Kasarmitorin alueesta on kehittymässä mielenkiintoinen liikekeskus, jossa toimii muun muassa useiden yritysten pääkonttoreita ja mainostoimistoja. Uudet hotellit ja ravintolat elävöittävät merellistä aluetta entisestään.
Lisätietoja soita 020 730 4530 tai info@repoint.fi. Palvelumme on tilanhakijalle ilmainen.
Toimiston tiedot
| Osoite: | Fabianinkatu 21, 00130 Helsinki |
|---|---|
| Kauppatapa: | Vuokrataan |
| Tilatyyppi: | Toimisto |
| Pinta-ala: | 500 m² |
| Kerros: | 5 |
| Vuokra: | Ota yhteyttä kohteen välittäjään |
| Energialuokka: | F2007 |



