
Vuokrataan toimisto 272 m² Pohjoisesplanadi 21, Keskusta, Helsinki
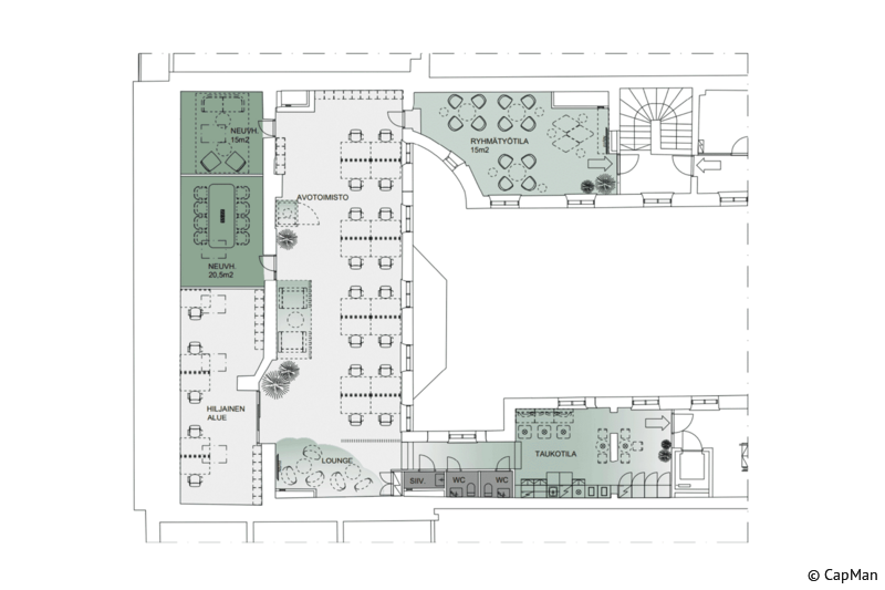
Vuokrataan remontoitava neljännen kerroksen toimisto Cavoniuksen talosta Pohjoisesplanadilta. Tämä Carl Ludvig Engelin suunnittelema talo sijaitsee paraatipaikalla keskustassa ja lähistöltä löytyy monipuoliset palvelut sekä hyviä lounasravintoloita. Tilat räätälöidään seuraavalle käyttäjälle.
Lisätietoja soita 020 730 4530 tai info@repoint.fi. Palvelumme on tilanhakijalle ilmainen.
Toimiston tiedot
| Osoite: | Pohjoisesplanadi 21, 00100 Helsinki |
|---|---|
| Kauppatapa: | Vuokrataan |
| Tilatyyppi: | Toimisto |
| Pinta-ala: | 272 m² |
| Kerros: | 4 |
| Vuokra: | Ota yhteyttä kohteen välittäjään |
| Energialuokka: | Ei energiatodistusta |






