
Vuokrataan toimisto 242 m² Bulevardi 1, Keskusta, Helsinki
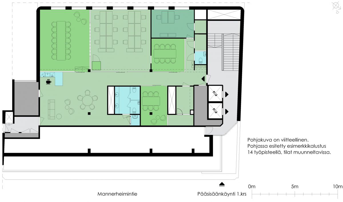
Vuokrataan avara ylimmän kerroksen toimistotila hienosta käyttäjänsä tarpeisiin mukautuvasta arvokiinteistöstä. Upea sijainti Mannerheimintien ja Bulevardin kulmasta. Loistavat näkymät Helsingin ylle. Kaksi neuvotteluhuonetta, avotoimistoa, keittiö ja taukotila sekä wc-tilat. Ilmoituksen kuvat ovat havinnekuvia ja esimerkkejä kiinteistön tiloista.
Theodor Höjerin suunnitteleman rakennuksen sisätiloihin astuttaessa porraskäytävän upeat katto- ja seinämaalaukset vangitsevat katseen. Vuonna 1890 valmistunut rakennus on entisöity huolellisesti ja tilat muuntautuvat sulavasti käyttäjänsä tarpeisiin.
Keskeisellä paikalla sijaitsevalta kiinteistöltä on hyvät liikenneyhteydet. Mannerheimintiellä ja Bulevardilla liikennöivät bussit sekä raitiovaunut ja Helsingin päärautatieasemakin on aivan lähellä. Viihtyisyyttä alueella lisäävät lähellä sijaitsevat Vanha kirkkopuisto ja Esplanadin puisto. Kaikki ydinkeskustan palvelut ovat kävelymatkan etäisyydellä. Kohteen omistaa Sponda.
Lisätietoja soita 020 730 4530 tai info@repoint.fi. Palvelumme on tilanhakijalle ilmainen.
Toimiston tiedot
| Osoite: | Bulevardi 1, 00100 Helsinki |
|---|---|
| Kauppatapa: | Vuokrataan |
| Tilatyyppi: | Toimisto |
| Pinta-ala: | 242 m² |
| Kerros: | 7 |
| Vuokra: | Ota yhteyttä kohteen välittäjään |
| Energialuokka: | Ei energiatodistusta |









