
Vuokrataan toimisto 233 m² Kaivokatu 8, Keskusta, Helsinki
Vuokrataan moderni ja valoisa hybriditoimisto Rautatieasemaa vastapäätä. Vapautuminen kesäkuussa 2023. Ilmoituksen kuvat ovat yleiskuvia kiinteistöstä.
Citycenterin liike- ja toimistokeskus sijaitsee aivan Helsingin sydämessä. Citycenterissä on nykyaikaisia toimistotiloja kahdeksassa kerroksessa. Tiloista on avarat näkymät Rautatientorille ja aseman yli Töölönlahden suuntaan. Modernissa kauppakeskuksessa on kattava valikoima kaupallisen alan toimijoita sekä palveluita terveydenhuollosta pankkeihin ja ravintoloihin. Citycenterissä on tehty mittava uudistus vuonna 2013. Kohteen omistaa Sponda.
Lisätietoja soita 020 730 4530 tai info@repoint.fi. Palvelumme on tilanhakijalle ilmainen.
Toimiston tiedot
| Osoite: | Kaivokatu 8, 00100 Helsinki |
|---|---|
| Kauppatapa: | Vuokrataan |
| Tilatyyppi: | Toimisto |
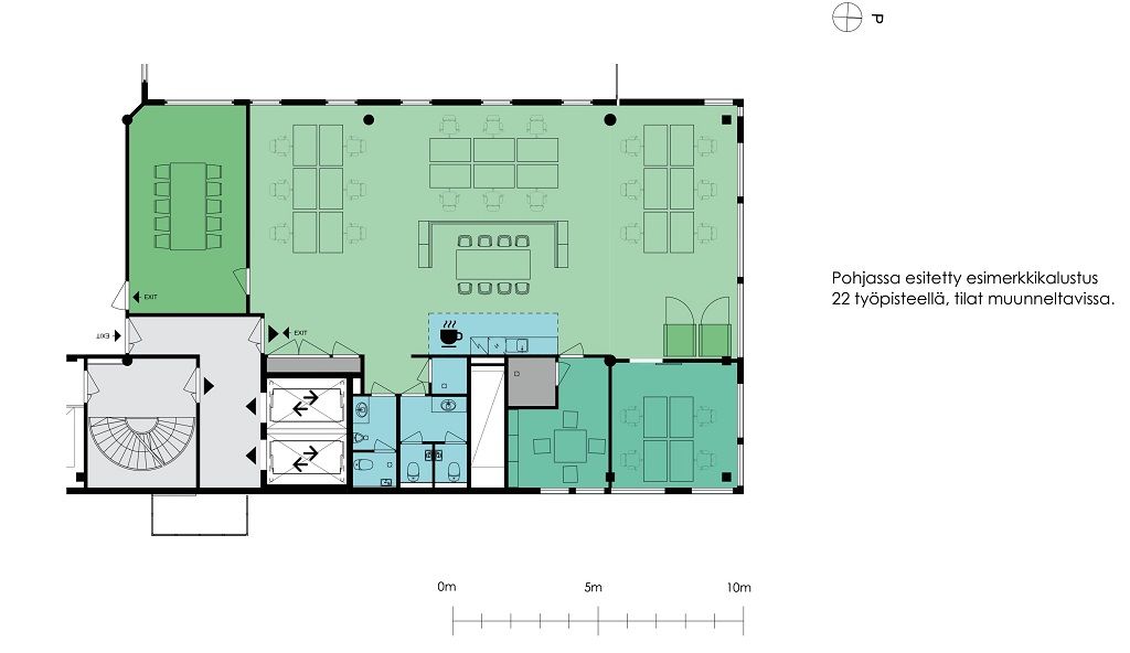
| Pinta-ala: | 233 m² |
| Kerros: | 8 |
| Vuokra: | Ota yhteyttä kohteen välittäjään |
| Energialuokka: | G2007 |







