
Vuokrataan toimisto 255 m² Aleksanterinkatu 48 , Keskusta, Helsinki
Vuokrataan edustavaa ja tyylikästä toimistotilaa Aleksanterinkadulta.
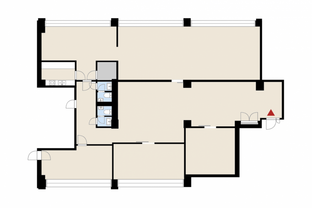
Toimisto on pääosin avotilaa, mutta tilaan on myös mahdollista saada sekä huoneita että avotoimistoa. Tila on suunniteltu noin 16-20 henkilölle neuvottelutiloineen. Tilassa on kaksi wc:tä sekä kahvikeittiö. Tilan tuloilma on jäähdytetty.
Kaikki keskustan palvelut, kaupat ja lounasravintolat ovat kävelyetäisyydellä. Lähellä on lukuisia pysäköintimahdollisuuksia, lähimpänä Kluuvin parkkihalli tai Stockmannin Q-park.
Lisätietoja soita 020 730 4530 tai info@repoint.fi. Palvelumme on tilanhakijalle ilmainen.
Toimiston tiedot
| Osoite: | Aleksanterinkatu 48 , 00100 Helsinki |
|---|---|
| Kauppatapa: | Vuokrataan |
| Tilatyyppi: | Toimisto |
| Pinta-ala: | 255 m² |
| Kerros: | 4 |
| Vuokra: | Ota yhteyttä kohteen välittäjään |
| Energialuokka: | Ei energiatodistusta |







