
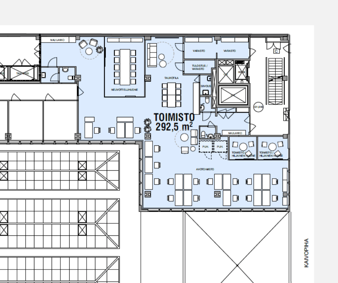
Vuokrataan toimisto 293 m² Kaivokatu 10 , Keskusta, Helsinki
Vuokrataan tyylikäs 6. kerroksen toimistotila Kaivotalosta. Tila on muuttovalmiissa kunnossa ja sitä on myös mahdollista remontoida seuraavalle käyttäjälle sopivaksi.
Rautatie-asemaa vastapäätä oleva Kaivotalo on erinomainen vaihtoehto julkista liikennetä ja keskustan palveluita arvostavalle.
Lisätietoja soita 020 730 4530 tai info@repoint.fi. Palvelumme on tilanhakijalle ilmainen.
Toimiston tiedot
| Osoite: | Kaivokatu 10 , 00100 Helsinki |
|---|---|
| Kauppatapa: | Vuokrataan |
| Tilatyyppi: | Toimisto |
| Pinta-ala: | 293 m² |
| Kerros: | 6 |
| Vuokra: | Ota yhteyttä kohteen välittäjään |
| Energialuokka: | Ei energiatodistusta |






