
Vuokrataan toimisto 556 m² Korkeavuorenkatu 35 , Keskusta, Helsinki
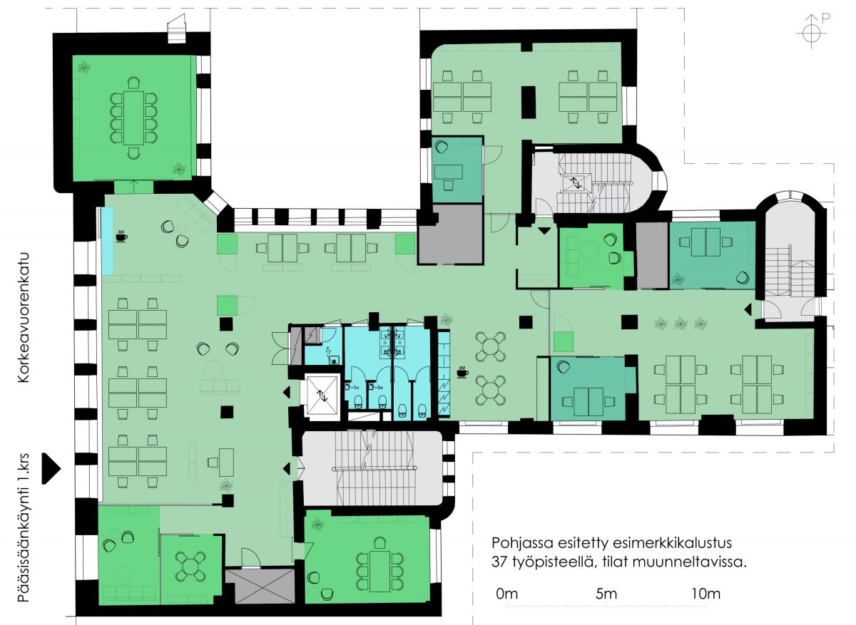
Vuokrataan Hyväkuntoinen monitilatoimisto tunnelmallisessa jugendlinnassa. Tilavat, valoisat ja korkeat huoneet. Ilmoituksen kuvat ovat havainnekuvia ja esimerkkejä kiinteistöön toteutetuista tiloista.
Arkkitehti Lars Sonckin suunnittelema kivilinna on sisä- ja ulkotiloiltaan peruskorjattu nykyaikaiseen toimistokäyttöön vuonna 2011 Helsingin kaupunginmuseon kanssa. Rakennuksen upea julkisivu ja historiaa henkivä portaikko ovat nykyisin suojeltuja kohteita. Kivilinnan ainutlaatuisissa puitteissa on vuokrattavissa modernia ja arvokasta toimistotilaa, ja tilat ovat muunneltavissa vuokralaisen tarpeiden mukaisesti.Kiinteistö sijaitsee erinomaisella paikalla Helsingin keskustassa. Keskeisen sijaintinsa ansiosta kiinteistölle on hyvät kulkuyhteydet julkisilla liikennevälineillä. Myös kaikki keskustan palvelut ovat lähietäisyydellä. Kohteen omistaa Sponda.
Lisätietoja soita 020 730 4530 tai info@repoint.fi. Palvelumme on tilanhakijalle ilmainen.
Toimiston tiedot
| Osoite: | Korkeavuorenkatu 35 , 00130 Helsinki |
|---|---|
| Kauppatapa: | Vuokrataan |
| Tilatyyppi: | Toimisto |
| Pinta-ala: | 556 m² |
| Kerros: | 4 |
| Vuokra: | Ota yhteyttä kohteen välittäjään |
| Energialuokka: | E2007 |












