
Vuokrataan toimisto 265 m² Erottajankatu 5 C, Keskusta, Helsinki
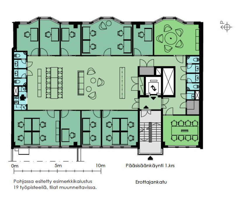
Vuokrataan tyylikäs ja valoisa muuttovalmis toimistotila Erottajalta. Avara ja tehokas toimisto on jaettu seitsemään eri työ- ja neuvottelutilaan lasiseinillä. Tilassa myös oma suihku. Tilaa on mahdollista muokata seuraavan käyttäjän tarpeiden mukaan.
Historiallista arvokkuutta henkivä toimisto- ja liiketilakiinteistö vehreällä paikalla Helsingin ydinkeskustassa. Kiinteistöstä on näkymät vieressä sijaitsevaan vehreään Diana-puistoon ja kiinteistön sisäpihalla sijaitsee Diana Auditorio. Kohteen omistaa Sponda.
Kaikki keskustan palvelut kävelyetäisyydellä ja bussi- sekä raitiovaunupysäkit kiinteistön edessä.
Lisätietoja soita 020 730 4530 tai info@repoint.fi. Palvelumme on tilanhakijalle ilmainen.
Toimiston tiedot
| Osoite: | Erottajankatu 5 C, 00130 Helsinki |
|---|---|
| Kauppatapa: | Vuokrataan |
| Tilatyyppi: | Toimisto |
| Pinta-ala: | 265 m² |
| Kerros: | 5 |
| Vuokra: | Ota yhteyttä kohteen välittäjään |
| Energialuokka: | E2007 |












