
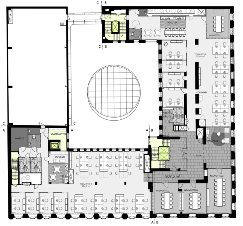
Vuokrataan toimisto 650 m² Aleksanterinkatu 11, Keskusta, Helsinki
Vuokrataan 7. kerroksen valoisa toimistotila. Tila on rakennettavissa käyttäjän tarpeiden mukaan.
The First -toimistotalo on saneerattu täysin ja uudistettu vastaamaan nykyajan vaatimuksia. Kiinteistö on yhdistelmä edustavuutta sekä toimistorakennuksen toimivuutta.
Helsingin ytimessä sijaitsevaa The First -toimistotaloa ympäröi laadukkaat palvelut. Ympäriltä löytyy ravintoloita, hotellipalveluja sekä julkisen liikenteen keskeisimmät asemat. Rautatieasemalle ja metrolle on vain lyhyt kävelymatka ja raitiovaunu kulkee kiinteistön edestä.
Lisätietoja soita 020 730 4530 tai info@repoint.fi. Palvelumme on tilanhakijalle ilmainen.
Toimiston tiedot
| Osoite: | Aleksanterinkatu 11, 00100 Helsinki |
|---|---|
| Kauppatapa: | Vuokrataan |
| Tilatyyppi: | Toimisto |
| Pinta-ala: | 650 m² |
| Kerros: | 4 |
| Vuokra: | Ota yhteyttä kohteen välittäjään |
| Energialuokka: | Ei energiatodistusta |













