
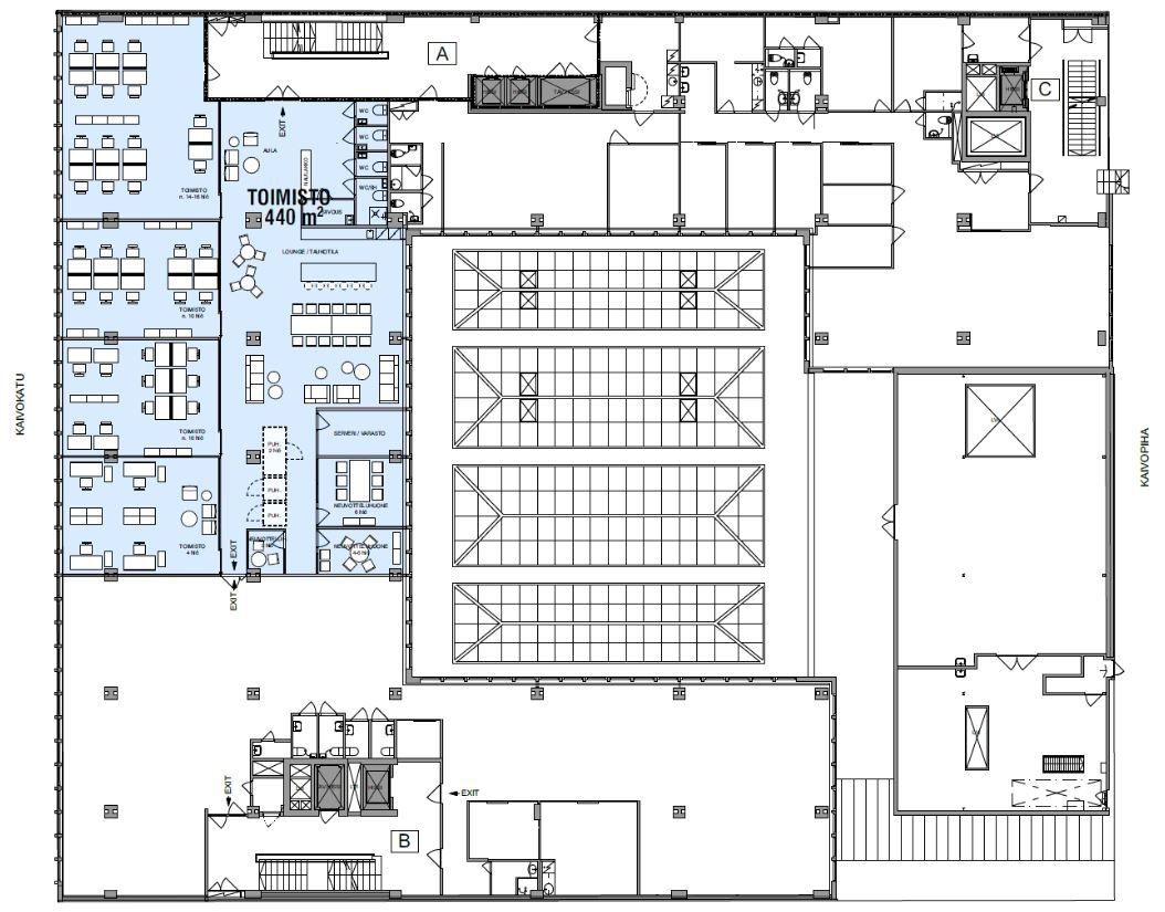
Vuokrataan toimisto 440 m² Kaivokatu 10, Keskusta, Helsinki
Vuokrataan moderni ja viihtyisä 5. kerroksen toimistotila Kaivotalosta. Avotoimistoa, neuvotteluhuoneita, 4 wc:tä ja avokeittiö. Tilaan kaksi sisäänkäyntia ja upeat näkymät Rautatieaseman suuntaan.
Arkkitehti Pauli Salomaan suunnittelema Kaivotalo valmistui tyylisuuntansa malliesimerkiksi vuonna 1955. Kaivotalon ensimmäisessä ja toisessa kerroksessa sijaitsee liiketiloja, ylemmät kerrokset toimivat toimistotiloina.
Upeat näköalat kertovat sijainnin parhaat puolet: kulkuyhteydet rakennukseen ovat Helsingin parhaat ja alueen palvelut loistavat.
Rautatieasemaa vastapäätä oleva Kaivotalo on erinomainen vaihtoehto julkista liikennetä ja keskustan palveluita arvostavalle.
Lisätietoja soita 020 730 4530 tai info@repoint.fi. Palvelumme on tilanhakijalle ilmainen.
Toimiston tiedot
| Osoite: | Kaivokatu 10, 00100 Helsinki |
|---|---|
| Kauppatapa: | Vuokrataan |
| Tilatyyppi: | Toimisto |
| Pinta-ala: | 440 m² |
| Kerros: | 5 |
| Vuokra: | Ota yhteyttä kohteen välittäjään |
| Energialuokka: | Ei energiatodistusta |





