
Vuokrataan toimisto 513 m² Vattuniemenranta 2, Lauttasaari, Helsinki
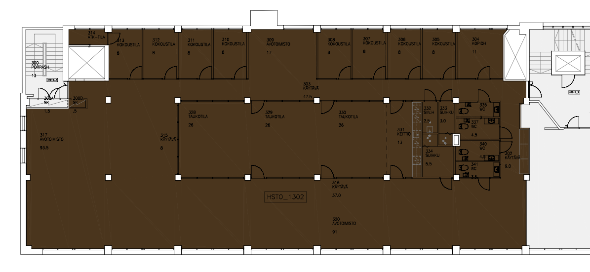
Vuokrataanavotoimisto Lauttasaaresta merenrannasta. Upeat näkymät merelle ja venesatamaan. Tämä tila koostuu avotilasta sekä useasta kokoushuoneesta. Tilassa on myös taukotila, keittiö, suihkut ja wc-tilat.
Lisätietoja soita 020 730 4530 tai info@repoint.fi. Palvelumme on tilanhakijalle ilmainen.
Toimiston tiedot
| Osoite: | Vattuniemenranta 2, 00210 Helsinki |
|---|---|
| Kauppatapa: | Vuokrataan |
| Tilatyyppi: | Toimisto |
| Pinta-ala: | 513 m² |
| Kerros: | 3 |
| Vuokra: | Ota yhteyttä kohteen välittäjään |
| Energialuokka: | Ei energiatodistusta |


